INICIO
QUIENES SOMOS
SERVICIOS
Proyectos Obras
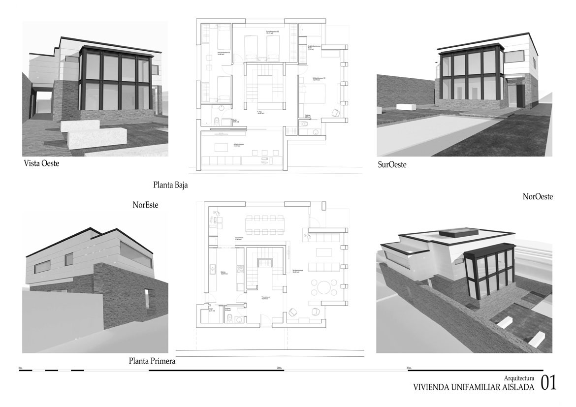
Obra Nueva
Vivienda Rústica
Reformas
Aviso Previo - Licencias de Actividad
Proyectos de Ordenación de Montes
Proyectos de Repoblación
Proyectos de naves agrícolas y forestales.
Topografía
Medición de fincas.
Altimetrías
Batimetrías
Cubicación de tierras.
Replanteos
Deslindes
Segregaciones y agrupaciones
Informes
Informes Periciales
Cetificados Energéticos
I.T.E
Estudio de Condensaciones
Tasaciones
Informes de subsanación y todo tipo de gestión catastral.
Certificaciones técnicas.
Licitaciones
Documentación técnica
Análisis Coste
Proyectos BC3
Avances Obra 3D
Instalaciones
Instalaciones Edificios
Patentes Industria
TRABAJOS REALIZADOS
Contacto
×
Menu
INICIO
QUIENES SOMOS
SERVICIOS
Obra Nueva
Vivienda Rústica
Reformas
Aviso Previo - Licencias de Actividad
Documentación Técnica
Análisis Coste
Proyectos BC3
Avances Obra 3D
Informes Periciales
Certificados Energéticos
ITE
Estudio de Condensaciones
Tasaciones
Instalaciones Edificios
Patentes Industria
TRABAJOS REALIZADOS
CONTACTO